faq обучение настройка
Текущее время: Ср апр 01, 2026 04:23

Часовой пояс: UTC + 3 часа




Начать новую тему Ответить на тему  [ Сообщений: 5 ] 
Автор Сообщение
 Заголовок сообщения: Организация сети в офисе
СообщениеДобавлено: Ср дек 11, 2013 11:15 
Не в сети

Зарегистрирован: Ср дек 11, 2013 11:10
Сообщений: 1
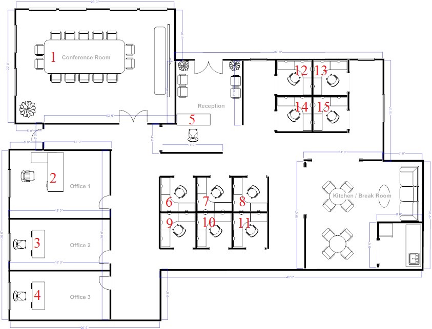
Следующая ситуация:
Офис площадью 100-120 кв.м
15 ПК
Нужно организовать в нём локальную сеть с использованием беспроводной точки или беспроводных точек доступа.
Вероятно использование конференц связи.

Помогите подобрать оборудование и разместить его.
Прилагаю схему.


Вложения:
plan-rasstanovki-mebeli-v-ofise.jpg
plan-rasstanovki-mebeli-v-ofise.jpg [ 102.17 KiB | Просмотров: 2823 ]
Вернуться наверх
 Профиль  
 
 Заголовок сообщения: Re: Организация сети в офисе
СообщениеДобавлено: Пт дек 13, 2013 12:07 
Не в сети

Зарегистрирован: Чт ноя 28, 2013 10:04
Сообщений: 10
Вот так дела:)
Обратитесь в проектную организацию... они вам и решение подберут под ваш кошелек и запросы и гарантией обеспечат.
А то вам кто-нибудь что-нибудь посоветует, а работать это будет через раз, а спрос будет с вас.
Моё личное мнение - делайте проводное решение, будет надежнее, шустрее, стабильнее и экологичнее.


Вернуться наверх
 Профиль  
 
 Заголовок сообщения: Re: Организация сети в офисе
СообщениеДобавлено: Вс янв 12, 2014 14:08 
Не в сети

Зарегистрирован: Пн июл 05, 2004 08:08
Сообщений: 107
В офисе явно будет кол-центр. Телефоны тоже по беспроводке будете подключать? Если да, то нужно готовить либо бабло на что-нибудь типа Cisco или Motorola, либо верёвку с мылом.
Судя по тому, что человек задаёт вопрос на форуме D-Link, денег не будет. Поэтому более вероятен второй вариант.


Вернуться наверх
 Профиль  
 
 Заголовок сообщения: Re: Организация сети в офисе
СообщениеДобавлено: Вт янв 14, 2014 08:45 
Не в сети

Зарегистрирован: Чт ноя 28, 2013 10:04
Сообщений: 10
Ага колл-центр на 10 операторов с раздельными кабинетами, 3-х руководителей с рецепшеном, конференцкомнатой и кухней с зоной отдыха.


Вернуться наверх
 Профиль  
 
 Заголовок сообщения: Re: Организация сети в офисе
СообщениеДобавлено: Вт янв 14, 2014 09:02 
Не в сети

Зарегистрирован: Вт фев 26, 2008 19:07
Сообщений: 9130
Откуда: Москва
веревка вас точно ждет !
Телефоны по вифи - утопия
сеть с такими запросми , да по воздуху . еще большая утопия !
обратитесь в проектную организацию .... Вам легче будет .

_________________
Своим вопросом Вы загоняете меня в ГУГЛ.....
DFL-210 -архив образов
Меня можно найти в боте Телеграмма @MyKingdombot когда РКН перестанет заниматься ерундой :-)
Готовыe платить - пишите
Прикуплю неисправные девайсы ради корпусов ....-> в личку


Вернуться наверх
 Профиль  
 
Показать сообщения за:  Сортировать по:  
Начать новую тему Ответить на тему  [ Сообщений: 5 ] 

Часовой пояс: UTC + 3 часа


Кто сейчас на форуме

Сейчас этот форум просматривают: нет зарегистрированных пользователей и гости: 53


Вы не можете начинать темы
Вы не можете отвечать на сообщения
Вы не можете редактировать свои сообщения
Вы не можете удалять свои сообщения
Вы не можете добавлять вложения

Найти:
Перейти:  
Создано на основе phpBB® Forum Software © phpBB Group
Русская поддержка phpBB