faq обучение настройка
Текущее время: Чт ноя 06, 2025 17:20

Часовой пояс: UTC + 3 часа




Начать новую тему Ответить на тему  [ Сообщений: 2 ] 
Автор Сообщение
 Заголовок сообщения: помогите подобрать оборудование
СообщениеДобавлено: Вс май 26, 2013 07:23 
Не в сети

Зарегистрирован: Вс май 26, 2013 07:19
Сообщений: 1
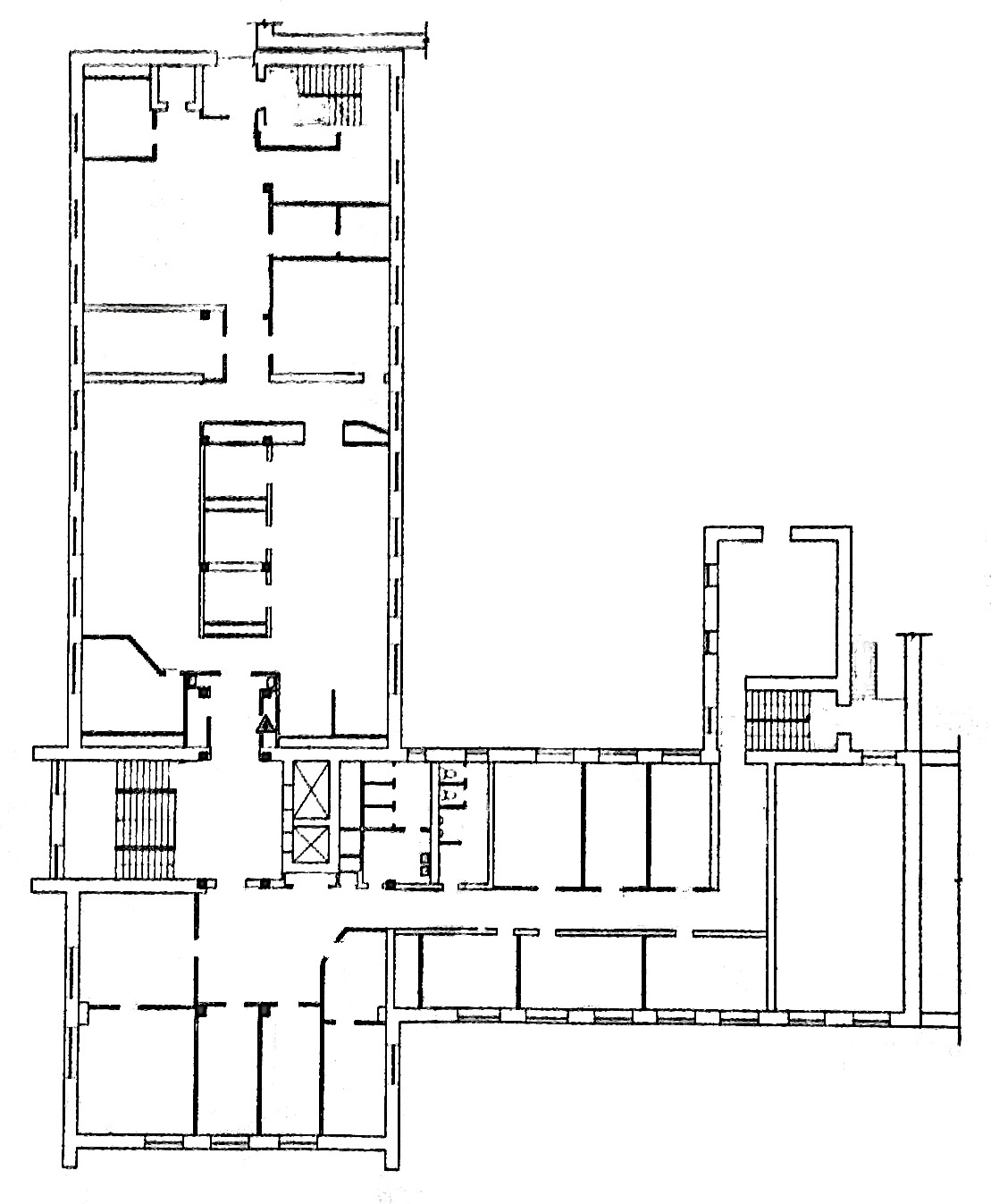
помогите подобрать к этому плану здания точки доступа и коммутатор. структура такая интернет-сервер-коммутатор-точки доступа. здание 7 этажей. коммутатор располагается на 3 этаже. все этажи однотипные.


Вложения:
Комментарий к файлу: план
2.jpg
2.jpg [ 224.52 KiB | Просмотров: 1006 ]
Вернуться наверх
 Профиль  
 
СообщениеДобавлено: Чт май 30, 2013 15:31 
Не в сети
Сотрудник D-LINK
Сотрудник D-LINK

Зарегистрирован: Пт дек 24, 2010 16:07
Сообщений: 3189
Добрый день,

Укажите размеры здания (примерные).
Если считать, что ширина здания 12-15 метров, то на этаж потребуется примерно 4 ТД DWL-2600AP или 3 DWL-3600AP (это теоретический расчет, лучше постаить точки на метсте и посмотреть).

Оборудование:
DWS-3160-24xx (TC - версия без PoE, PC - с PoE)
лицензия DWS-3160-24xx-AP12 или DWS-3160-24xx-AP24
ТД: DWL 2600AP - 28шт
или
DWL-3600AP - 21 шт
+ дополнительные свичи (в зависимости от длины кабеля между точками и контроллером).


Вернуться наверх
 Профиль  
 
Показать сообщения за:  Сортировать по:  
Начать новую тему Ответить на тему  [ Сообщений: 2 ] 

Часовой пояс: UTC + 3 часа


Кто сейчас на форуме

Сейчас этот форум просматривают: нет зарегистрированных пользователей и гости: 22


Вы не можете начинать темы
Вы не можете отвечать на сообщения
Вы не можете редактировать свои сообщения
Вы не можете удалять свои сообщения
Вы не можете добавлять вложения

Найти:
Перейти:  
Создано на основе phpBB® Forum Software © phpBB Group
Русская поддержка phpBB